> ARCHIVE > HOUSING > COMPLETED > MELBOURNE, WURUNDJERI LAND
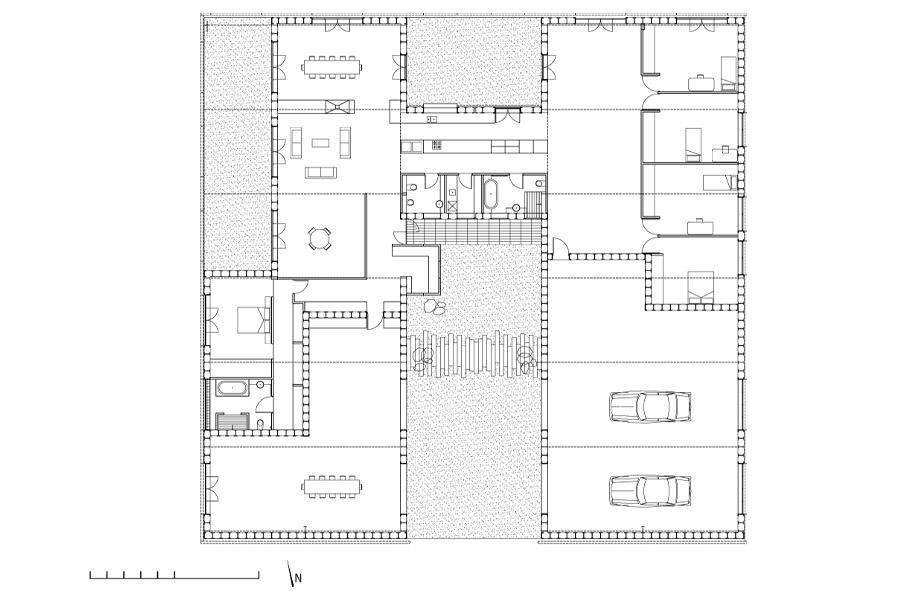
This house was designed for a well known Melbourne florist/sculptor. It is a large house designed for a family of five and includes two large workshop spaces.The house consists of two pre-fabricated steel sheds with straw bale walls and roof. The house will have an autonomous water supply, water recycling system and solar power and hot water generation.
All of the materials used in the house are recyclable including an external galvanised reinforcement mesh wall that houses 7140 terracotta pots. The pots will contain various plants depending on the orientation, location and degree of shading.
The landscaping for the entire project is designed at 45 degrees to the house and develops different themes and zones that like the external walls codify and disguise the house.
Straw bale walls are used throughout providing natural insulation in the walls and, with the development of a pre-fabricated structural system, in the ceiling of the house. A screen of flowerpots also acts as an additional shading device for the walls. Internally a proprietary system of straw walls will be used.
The systematised pre-fabricated construction, developed in collaboration with Telfords, reflects the ambition of the project: sensitive environmentally sustainable houses using simple cost effective construction in sustainable resources. The system being developed to be applicable and appropriate for rural, suburban and urban sites.
The prototype house is large due to the integration of workshop and studio space, this provides a large roof area over 900 m2 specifically intended for the collection of rain water, enough to provide for all usage within the house and workshop. A series of water storage tanks are located downhill from the building and these tanks supplement the reticulated potable water supply, and all grey water is recycled.
![]()
All of the materials used in the house are recyclable including an external galvanised reinforcement mesh wall that houses 7140 terracotta pots. The pots will contain various plants depending on the orientation, location and degree of shading.
The landscaping for the entire project is designed at 45 degrees to the house and develops different themes and zones that like the external walls codify and disguise the house.
Straw bale walls are used throughout providing natural insulation in the walls and, with the development of a pre-fabricated structural system, in the ceiling of the house. A screen of flowerpots also acts as an additional shading device for the walls. Internally a proprietary system of straw walls will be used.
The systematised pre-fabricated construction, developed in collaboration with Telfords, reflects the ambition of the project: sensitive environmentally sustainable houses using simple cost effective construction in sustainable resources. The system being developed to be applicable and appropriate for rural, suburban and urban sites.
The prototype house is large due to the integration of workshop and studio space, this provides a large roof area over 900 m2 specifically intended for the collection of rain water, enough to provide for all usage within the house and workshop. A series of water storage tanks are located downhill from the building and these tanks supplement the reticulated potable water supply, and all grey water is recycled.





