> ARCHIVE > HOUSING > CONCEPT > MELBOURNE, WURUNDJERI LAND
This project
rethinks the traditional Australian coastal shack.
The design maintains the external envelope of the two separate tenancies and connects the tenancies producing numerous and flexible spaces. It does however add two new external outdoor areas that negotiate the suns path during the day – the timetable always deferring to the beach that is only 50 metres away
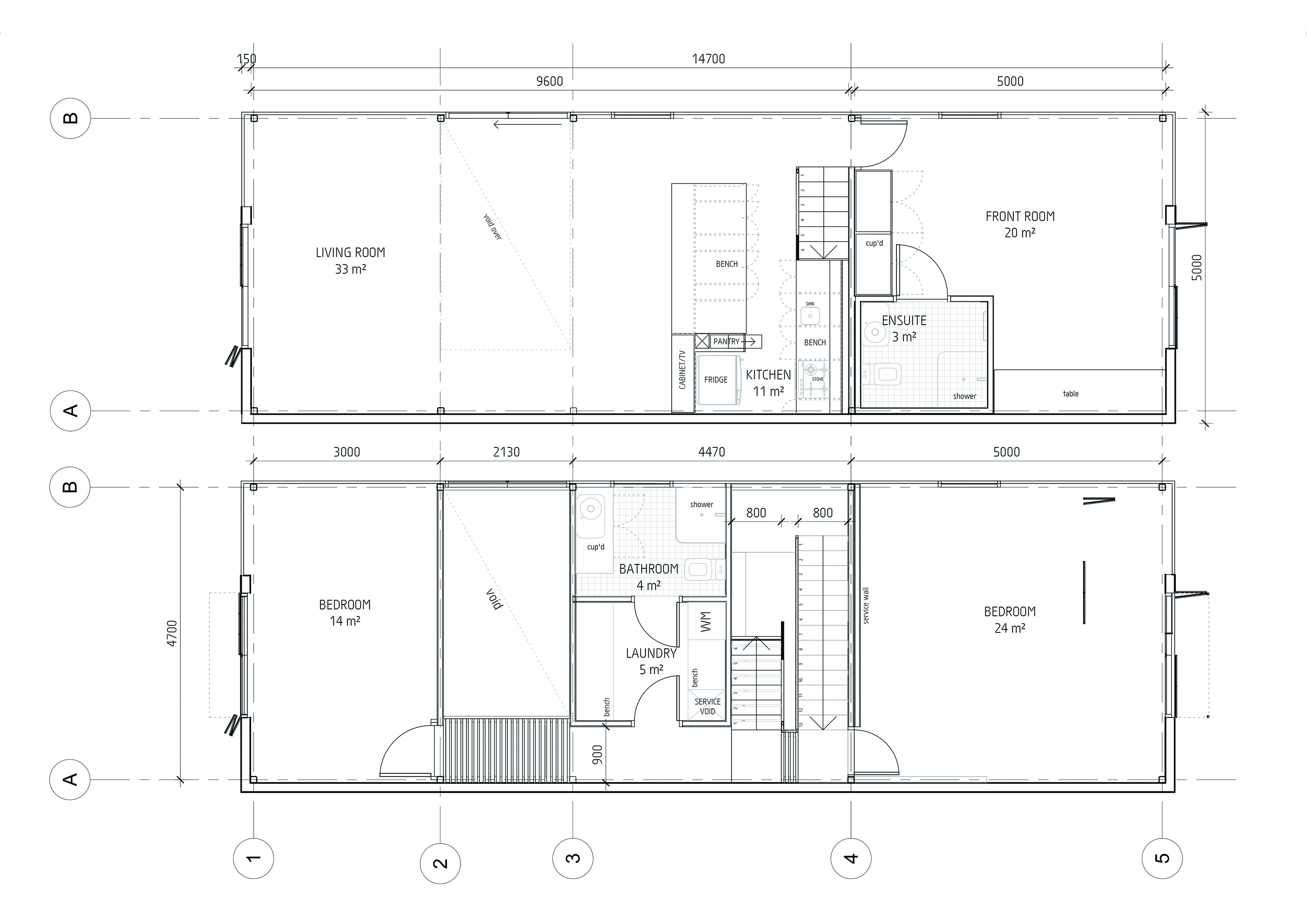
The beach house is located about 200km south of Sydney in Gerroa, within the boundaries of the popular Gerringong district. Designed for a very busy and transient family of four, the house can accommodate up to 12 family and friends at the one time.
The planning of the beach house can be characterized into two zones. One at the front facing the beach is more for the adults - allowing for cooking, eating and talking. The rear area is orientated towards children and services - allowing for playing, sleeping and reading.
The front external deck added to the main (adults) living area gets morning sun while also getting protection from the hot midday sun. The rear extenal deck is enclosed by a yellow green brick barbeque and fixed seat. Breezes and sunshine are captured in this outdoor space and importantly a view through the beach house to the water.
The rear external deck is drawn protectively into the volume of the of the beach house which in turn frames the view to the Pacific Ocean. This view not only governs the form and placement of the deck but also generates the robust interior, a place for the busy comings and goings of this mobile Australian family.
![]()
![]()
![]()
The design maintains the external envelope of the two separate tenancies and connects the tenancies producing numerous and flexible spaces. It does however add two new external outdoor areas that negotiate the suns path during the day – the timetable always deferring to the beach that is only 50 metres away
The beach house is located about 200km south of Sydney in Gerroa, within the boundaries of the popular Gerringong district. Designed for a very busy and transient family of four, the house can accommodate up to 12 family and friends at the one time.
The planning of the beach house can be characterized into two zones. One at the front facing the beach is more for the adults - allowing for cooking, eating and talking. The rear area is orientated towards children and services - allowing for playing, sleeping and reading.
The front external deck added to the main (adults) living area gets morning sun while also getting protection from the hot midday sun. The rear extenal deck is enclosed by a yellow green brick barbeque and fixed seat. Breezes and sunshine are captured in this outdoor space and importantly a view through the beach house to the water.
The rear external deck is drawn protectively into the volume of the of the beach house which in turn frames the view to the Pacific Ocean. This view not only governs the form and placement of the deck but also generates the robust interior, a place for the busy comings and goings of this mobile Australian family.


