> ARCHIVE > BLUE HILLS CHILDCARE > CITY OF KNOX: WURNDJERI COUNTRY
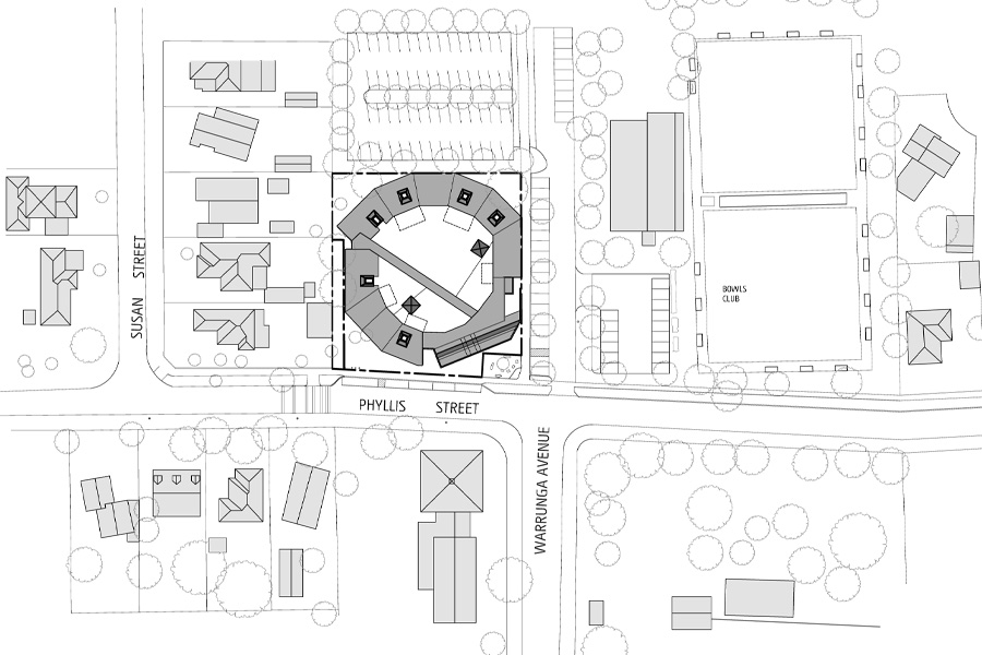
Following a successful collaboration on other child-focused facilities, the City of Knox commissioned antarctica to design its new Blue Hills Early Years Hub. This project involves the development of a site of an existing childcare facility as part
of a precinct development plan.
The design is based around the concept of rearranging a traditional sequence of space and creating central and flexible play spaces that all the playrooms can be positioned around and open onto. The concept allows for a suburban contextualisation of the exterior and the development of an interior that gives a high level of natural surveillance.
The design also provides space for community meeting and space for health and medical professionals for family support. The design also proposes passive sustainable systems which include large overhanging eaves and solar orientated skylights which increase the amount of natural light and also act as thermal stacks for specifically passive cooling in summer and a contemporary play space that is more active and developmental
![]()
![]()
![]()
![]()
![]()
of a precinct development plan.
The design is based around the concept of rearranging a traditional sequence of space and creating central and flexible play spaces that all the playrooms can be positioned around and open onto. The concept allows for a suburban contextualisation of the exterior and the development of an interior that gives a high level of natural surveillance.
The design also provides space for community meeting and space for health and medical professionals for family support. The design also proposes passive sustainable systems which include large overhanging eaves and solar orientated skylights which increase the amount of natural light and also act as thermal stacks for specifically passive cooling in summer and a contemporary play space that is more active and developmental









